The Cluster

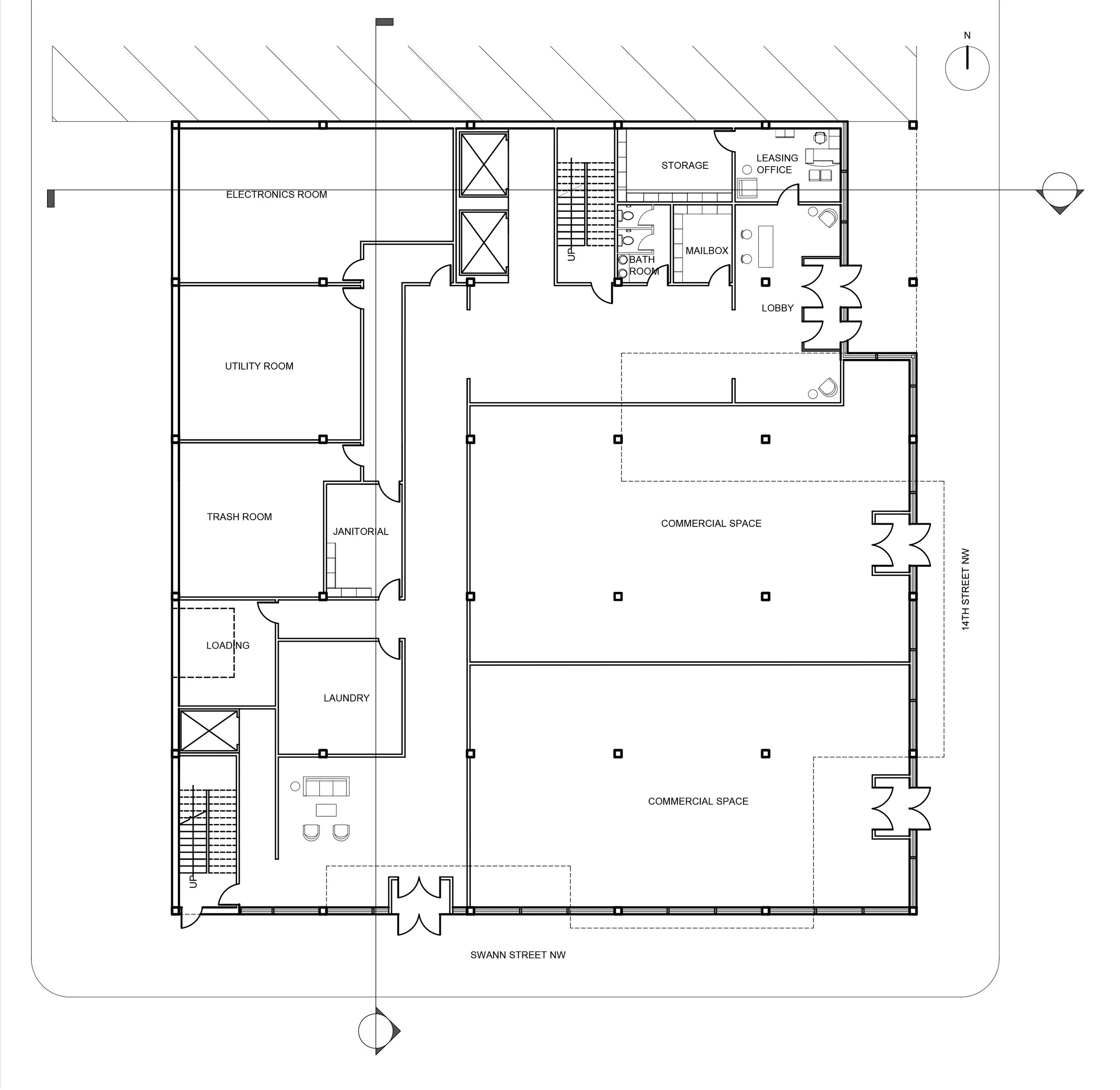
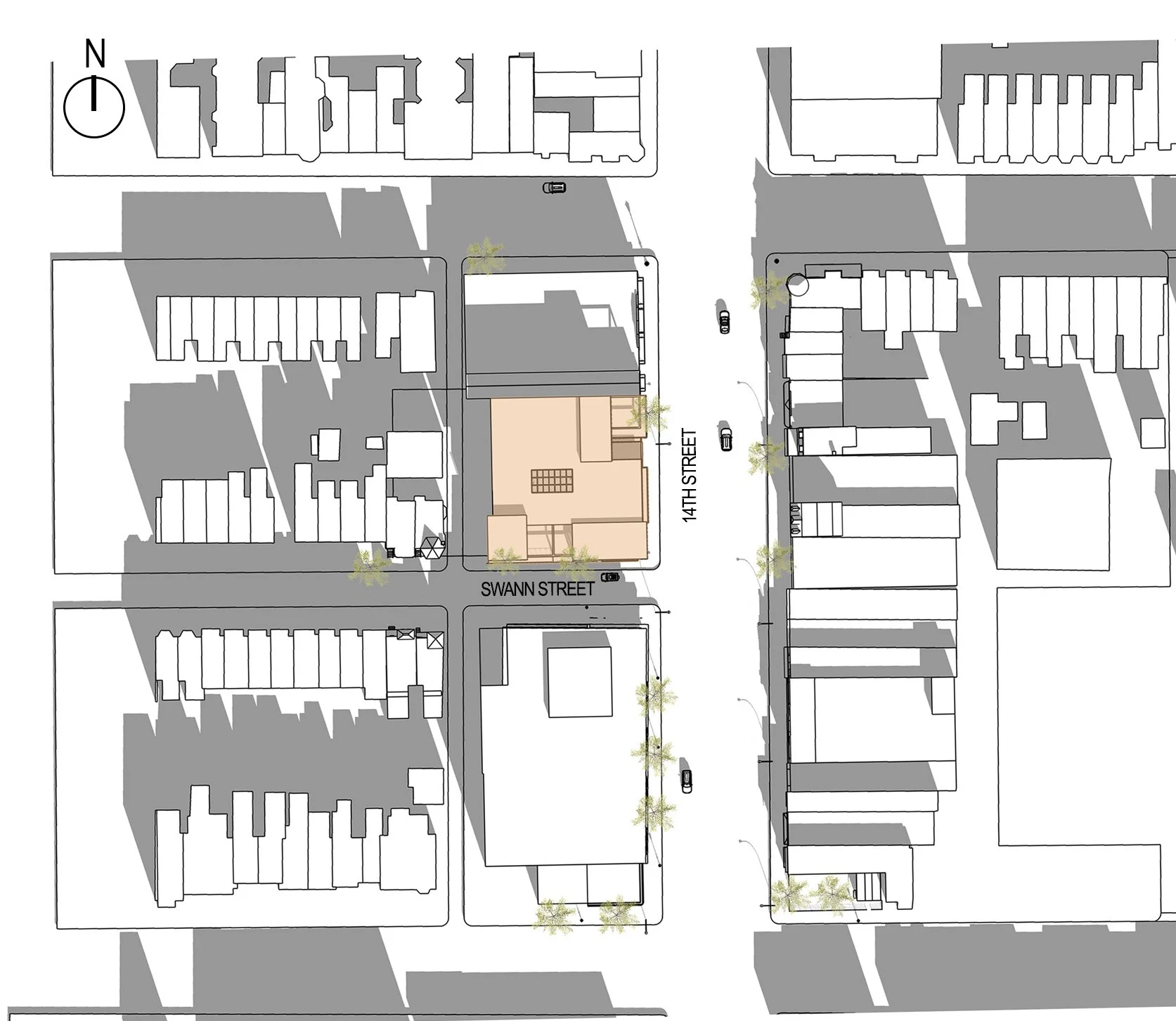
Located in Washington DC, “The Cluster” is a seven-story mix-use apartment complex, including two commercial spaces on the ground floor. This building features a series of studios, one-bedroom, and two-bedroom units. The main concept of this design is to maximize the connection between building occupants with nature and natural light in an urban environment. To address the concept, the units of this building are designed in a series of recessions and projections from the property line, and the overlapping of volumes has resulted in balconies. The shifts have allowed units to have windows on the sides to increase natural light, ventilation, and views. In addition, the building features two courtyard spaces going through the six residential floors which bring natural light into the central units. To create a sense of community in the building, “The Cluster” includes a rooftop garden, a theater, a library, and a gym with glass walls that overlooks into the garden space. To control sunlight, the facade is covered with rectangular wooden louvers that occupants can modulate it. “The Cluster” aims to improve the health and well-being of occupants through its design.

Next
Next

Harper's Ferry Adventure Center →