U Street Music Library

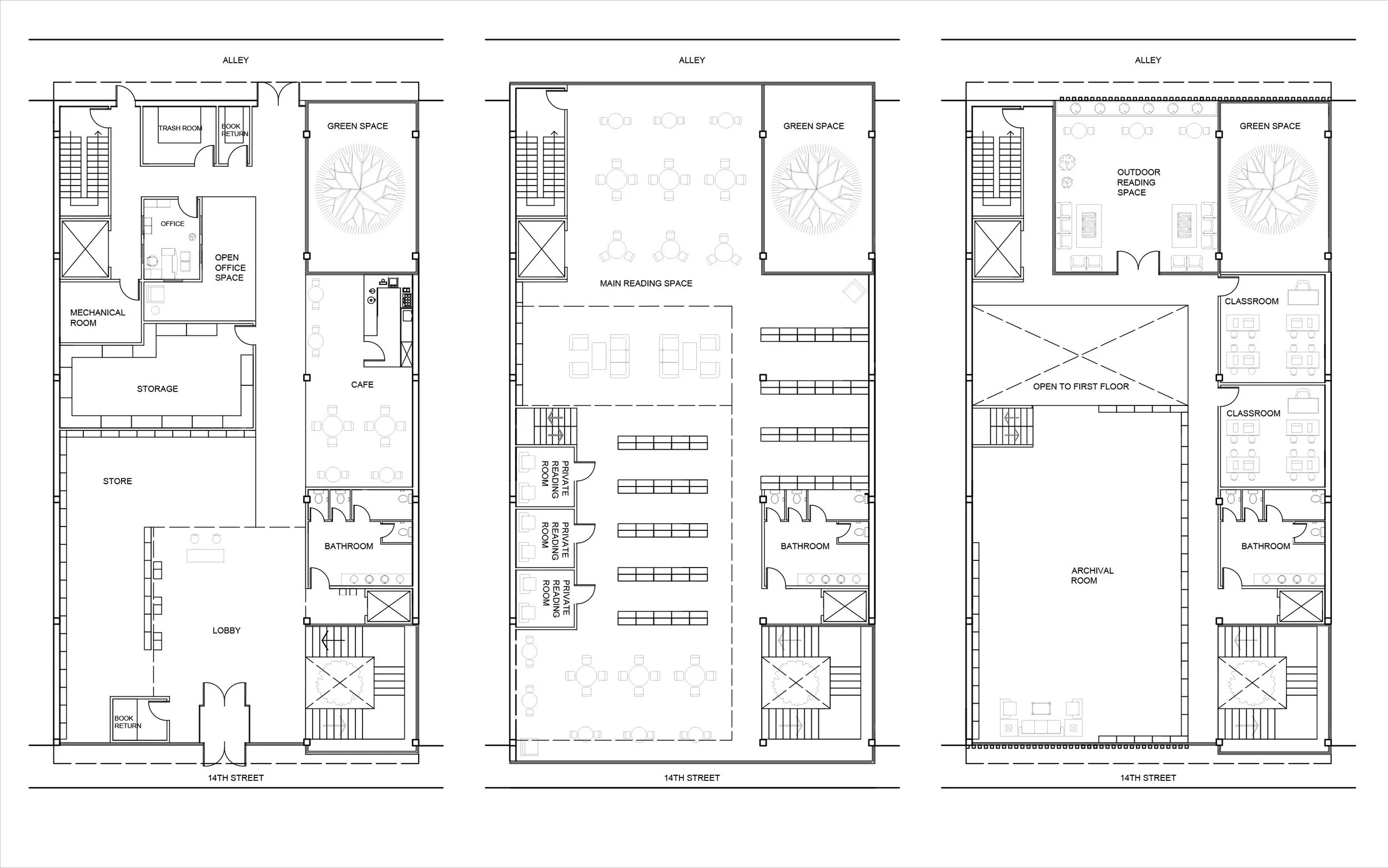
Following the concept of intersection, this design features a large primary reading room on the second floor that is intersected by multiple different volumes such as the grand staircase, elevators, green spaces, and most importantly, the archival room. The façade of the building further evokes this concept by showcasing hierarchy on both horizontal and vertical planes—the reading room is projected three feet from the main face of the building to highlight its importance as the focal space of the music library, while the three-story grand staircase volume is extruded 18 inches from the surface, emphasizing its impressive scale and showing the process of experiencing the building. A prominent feature of this design is the series of louvers generously applied throughout the façade, enclosing the greenspaces and highlighting the archive room from the exterior. These louvers mimic the forms of stringed and plucked instruments in a whimsical fashion. The green atrium in the library is designed to embody the concept of intersection, additionally creating a focus on biophilic design within the building, connecting building occupants with nature and natural forms.

Previous
Previous

The Stories We Construct →

Next
Next

The Kit of Parts →